Gewoon Goed

Tekst: Hans Fuchs
Fotografie: Kick Smeets
Kun je goed wonen in een stadsappartement kleiner dan vijftig vierkante meter? Ja, zeggen ontwerpers Milena Zaklanovic en Fenna Haakma Wagenaar van de Dienst Ruimte en Duurzaamheid – mits goed ontworpen. Binnen het gemeentelijke Impulsprogramma Gewoon Goed ontwikkelden zij met een team van collega’s richtlijnen voor de kwaliteit van kleine woningen. Daarmee stuurt de gemeente Amsterdam op de woonkwaliteit van de kleine units.
Gewoon Goede projecten in de stad: Cityplot, Justus en Switi.



Sturen op kwaliteit
De richtlijnen van het team Kwaliteit kleine woningen landden in hoofdstuk 4 van de Handreiking Gewoon Goed. En in de bijlage Woonkwaliteit die het team opstelde voor alle partijen die betrokken zijn bij de woningbouwopgave - van Grond en Ontwikkeling tot stedenbouwers, projectontwikkelaars en architecten. Aan de hand van de richtlijnen zou je volgens Fenna Haakma Wagenaar met een aantal vanzelfsprekende stappen het gesprek over woonkwaliteit bij elke opgave kunnen voeren: “Het begint met het bepalen van het programma. Voor wie bouw je? Wat voor een buurt wil je realiseren, wat voor een omgeving? Pas daarna ontwerp je een passende maatvoering van de envelop. In die envelop laat je ruimte, zodat een architect of ontwikkelaar met een goede en passende oplossing kan komen.” Vervolgens toets je plattegrond en envelop, aldus Milena Zaklanovic: “Let bij die plattegrondtoets niet alleen op vierkante meters maar juist op de indeling. Als een woning goed ontworpen is kun je er vaak met meerdere mensen langdurig goed in wonen - bijvoorbeeld in een tweezijdig georienteerde portiekwoning van vijftig vierkante meter waarin je in het midden binnenkomt. De realiteit van de woningbouw vereist dat wij de sturing en toetsing bij deze opgave terugpakken. Met het Impulsprogramma Gewoon Goed en de bijlage Woonkwaliteit creëren we dat mandaat.”
Team Gewoon Goed ‘Kwaliteit kleine woningen: Fenna Haakma Wagenaar, Milena Zaklanovic, Mirjana Milanovic, James Heus, Marije Raap, Harriet Wildenberg.
Collega’s die betrokken waren bij de agendering van Woonkwaliteit: Sietske van der Bolt (Wonen), Hans van der Made (RD), Christian Zandstra, Paco Bunnik (RD), Michiel Mulder, Victor Thöne, Laurens de Heus (GO).
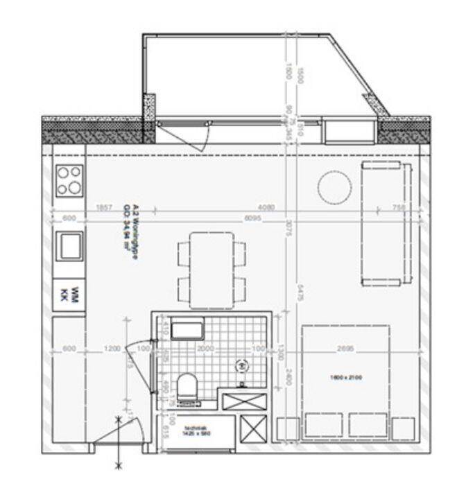
Plattegrond Opportuna

In woongebouw Opportuna wonen jongvolwassenen tussen 23 en 28 jaar. De 174 studio’s (sociale huur) zijn 35 tot 45 vierkante meter groot, maar hebben allemaal een privé buitenruimte. De studio’s zijn breed en ondiep. Dat maakt de daglichttoetreding goed en de plattegrond flexibel indeelbaar.



Studie maquette van een van de appartementen aan de westgevel

Opportuna plattegrond met indeling van de appartementen door Office Winhov

Kwaliteit weer onderdeel van het gesprek
Als reactie op de druk binnen de bouw- en woningmarkt introduceerde de gemeente in februari 2024 het Impulsprogramma Gewoon Goed. Met dat programma wil de gemeente de productie en de kwaliteit van kleine woningen op peil te houden, in alle fases van het planproces. Dat meldt de Handreiking bij het Impulsprogramma. De Handreiking, sinds juni online op de gemeentelijke website, paalt af welke woningen de gemeente hierbij in het vizier heeft: compacte appartementen van minder dan vijftig vierkante meter groot. Kleine woningen specifiek voor studenten – met minder dan dertig vierkante meter - vallen buiten het Impulsprogramma. Binnen Gewoon Goed kreeg het team Kwaliteit kleine woningen van Milena Zaklanovic en Fenna Haakma Wagenaar c.s. de gelegenheid om te zoeken naar mogelijkheden om te sturen op de kwaliteit van de kleine woning. Een erkenning van het probleem, aldus Haakma Wagenaar: “Gewoon Goed geeft behalve ruimte in de envelop voor optimalisatie of innovatie ons in ieder geval ook de opdracht om woonkwaliteit vanaf het begin weer onderdeel te maken van het gesprek. Tot ongeveer twintig jaar geleden was de plattegrond altijd deel van de stedenbouwkundige opgave. Tegenwoordig hebben we het er vaak helemaal niet over, of is er het gevoel dat de kwaliteit voldoende gedekt wordt door het Bouwbesluit. Met de richtlijnen voor de kwaliteit van de kleine woningplattegrond die we als team ontwikkelden kunnen we dat gesprek weer beginnen.”



In Sluisbuurt ontwierp NAT architecten The Suites, een woongebouw met appartementen van 33 vierkante meter. De langgerekte plattegrond zorgt voor een goede functiescheiding waardoor twee mensen hier goed samen kunnen wonen.
Ontwerpers Milena Zaklanovic (links) en Fenna Haakma Wagenaar van de Dienst Ruimte en Duurzaamheid.

“Zonder sturing op woonkwaliteit bestaat het gevaar dat we in de toekomst zitten opgescheept met veel kleine woningen die we niet meer nodig hebben of niet meer willen en geen duurzame of inclusieve buurt opleveren.”

“Gewoon Goed geeft behalve ruimte in de envelop voor optimalisatie of innovatie ons in ieder geval ook de opdracht om woonkwaliteit vanaf het begin onderdeel te maken van het gesprek.”

Appartementen kleiner dan vijftig vierkante meter; in Amsterdam neemt het aantal ieder jaar toe. Zulke compacte appartementen beantwoorden aan een vraag; volgens de tweejaarlijkse Factsheet Wonen uit 2023 woont van alle 505.705 huishoudens in Amsterdam ruim de helft (51%) alleen. Maar hoe staat het met de kwaliteit van het aanbod? Wisselend, stellen hoofdontwerper Fenna Haakma Wagenaar en senior stedebouwkundig ontwerper Milena Zaklanovic van de Amsterdamse Dienst Ruimte en Duurzaamheid. Het tweetal houdt zich met collega’s van de afdeling Wonen, de Dienst Ruimte en Duurzaamheid en Grond en Ontwikkeling al sinds de coronatijd bezig met de kwaliteit van kleine woningen. Haakma Wagenaar: “Die collega’s zijn toevallig allemaal architecten, die zagen dat de cultuur waarin ze waren opgeleid en hadden gewerkt snel aan het veranderen was. We constateerden dat de woningplattegrond geen onderdeel meer was van het planproces. En door de grote toename van het aandeel kleine woningen kwam het verderop in het proces ook niet meer zo maar goed met de kwaliteit. Juist kleine woningen vragen extra aandacht. Ze zijn niet alleen maar de oplossing van een haalbaarheidsprobleem, maar vormen zelf ook een uitdaging.”
Het huisvesten van kleine huishoudens is landelijk en in Amsterdam een grote opgave, onderstreept Milena Zaklanovic: “Het gaat om een demografische trend die verder doorzet. Maar zonder sturing op woonkwaliteit bestaat het gevaar dat we in de toekomst zitten opgescheept met veel kleine woningen die niet makkelijk aan te passen of samen te voegen zijn. Woningen die we, als de vraag verandert, niet meer nodig hebben of niet meer willen en geen duurzame of inclusieve buurt opleveren.”
Woningen voor de doorstroom
Woningen voor de doorstroom noemt Milena Zaklanovic zulke stadsappartementen. De eenzijdige oriëntering en diepte maken deze appartementen donker, inflexibel en vaak alleen geschikt voor eenpersoonshuishoudens: “Zodra je in je leven een volgende stap zet - een relatie, een gezin - kun je met zo’n woning veelal niet meer uit de voeten.” De smalle beukmaat geeft architecten ook weinig ruimte om privacy in de plattegrond te realiseren en verschillend gebruik te scheiden. Fenna Haakma Wagenaar: “Het is precies waar de woningwet over ging - dat je niet kookt en eet naast je bed. Samenwonen in een studio waar een zieke zich niet kan terugtrekken, waar geen ruimte is voor een tweepersoonsbed of waar de temperatuur op een zomerse dag tot veertig graden oploopt… pittig hoor!”
De handreiking Gewoon Goed bevat ook een aantal praktische bijlagen zoals de vuistregels kleine woningen. Dit document biedt inspiratie en tips hoe kleine woningen toch van hoge kwaliteit gebouwd kunnen worden.
Inhoud
Gewoon Goed

Tekst: Hans Fuchs
Fotografie: Kick Smeets
Kun je goed wonen in een stadsappartement kleiner dan vijftig vierkante meter? Ja, zeggen ontwerpers Milena Zaklanovic en Fenna Haakma Wagenaar van de Dienst Ruimte en Duurzaamheid – mits goed ontworpen. Binnen het gemeentelijke Impulsprogramma Gewoon Goed ontwikkelden zij met een team van collega’s richtlijnen voor de kwaliteit van kleine woningen. Daarmee stuurt de gemeente Amsterdam op de woonkwaliteit van de kleine units.




Switi
Justus
Cityplot
Sturen op kwaliteit
De richtlijnen van het team Kwaliteit kleine woningen landden in hoofdstuk 4 van de Handreiking Gewoon Goed. En in de bijlage Woonkwaliteit die het team opstelde voor alle partijen die betrokken zijn bij de woningbouwopgave - van Grond en Ontwikkeling tot stedenbouwers, projectontwikkelaars en architecten. Aan de hand van de richtlijnen zou je volgens Fenna Haakma Wagenaar met een aantal vanzelfsprekende stappen het gesprek over woonkwaliteit bij elke opgave kunnen voeren: “Het begint met het bepalen van het programma. Voor wie bouw je? Wat voor een buurt wil je realiseren, wat voor een omgeving? Pas daarna ontwerp je een passende maatvoering van de envelop. In die envelop laat je ruimte, zodat een architect of ontwikkelaar met een goede en passende oplossing kan komen.” Vervolgens toets je plattegrond en envelop, aldus Milena Zaklanovic: “Let bij die plattegrondtoets niet alleen op vierkante meters maar juist op de indeling. Als een woning goed ontworpen is kun je er vaak met meerdere mensen langdurig goed in wonen - bijvoorbeeld in een tweezijdig georienteerde portiekwoning van vijftig vierkante meter waarin je in het midden binnenkomt. De realiteit van de woningbouw vereist dat wij de sturing en toetsing bij deze opgave terugpakken. Met het Impulsprogramma Gewoon Goed en de bijlage Woonkwaliteit creëren we dat mandaat.”
Team Gewoon Goed ‘Kwaliteit kleine woningen: Fenna Haakma Wagenaar, Milena Zaklanovic, Mirjana Milanovic, James Heus, Marije Raap, Harriet Wildenberg.
Collega’s die betrokken waren bij de agendering van Woonkwaliteit: Sietske van der Bolt (Wonen), Hans van der Made (RD), Christian Zandstra, Paco Bunnik (RD), Michiel Mulder, Victor Thöne, Laurens de Heus (GO).
Plattegrond Opportuna

In woongebouw Opportuna wonen jongvolwassenen tussen 23 en 28 jaar. De 174 studio’s (sociale huur) zijn 35 tot 45 vierkante meter groot, maar hebben allemaal een privé buitenruimte. De studio’s zijn breed en ondiep. Dat maakt de daglichttoetreding goed en de plattegrond flexibel indeelbaar.



Studie maquette van een van de appartementen aan de westgevel

Opportuna plattegrond met indeling van de appartementen door Office Winhov

Kwaliteit weer onderdeel van het gesprek
Als reactie op de druk binnen de bouw- en woningmarkt introduceerde de gemeente in februari 2024 het Impulsprogramma Gewoon Goed. Met dat programma wil de gemeente de productie en de kwaliteit van kleine woningen op peil te houden, in alle fases van het planproces. Dat meldt de Handreiking bij het Impulsprogramma. De Handreiking, sinds juni online op de gemeentelijke website, paalt af welke woningen de gemeente hierbij in het vizier heeft: compacte appartementen van minder dan vijftig vierkante meter groot. Kleine woningen specifiek voor studenten – met minder dan dertig vierkante meter - vallen buiten het Impulsprogramma. Binnen Gewoon Goed kreeg het team Kwaliteit kleine woningen van Milena Zaklanovic en Fenna Haakma Wagenaar c.s. de gelegenheid om te zoeken naar mogelijkheden om te sturen op de kwaliteit van de kleine woning. Een erkenning van het probleem, aldus Haakma Wagenaar: “Gewoon Goed geeft behalve ruimte in de envelop voor optimalisatie of innovatie ons in ieder geval ook de opdracht om woonkwaliteit vanaf het begin weer onderdeel te maken van het gesprek. Tot ongeveer twintig jaar geleden was de plattegrond altijd deel van de stedenbouwkundige opgave. Tegenwoordig hebben we het er vaak helemaal niet over, of is er het gevoel dat de kwaliteit voldoende gedekt wordt door het Bouwbesluit. Met de richtlijnen voor de kwaliteit van de kleine woningplattegrond die we als team ontwikkelden kunnen we dat gesprek weer beginnen.”
In Sluisbuurt ontwierp NAT architecten The Suites, een woongebouw met appartementen van 33 vierkante meter. De langgerekte plattegrond zorgt voor een goede functiescheiding waardoor twee mensen hier goed samen kunnen wonen.



Ontwerpers Milena Zaklanovic (links) en Fenna Haakma Wagenaar van de Dienst Ruimte en Duurzaamheid.

“Zonder sturing op woonkwaliteit bestaat het gevaar dat we in de toekomst zitten opgescheept met veel kleine woningen die we niet meer nodig hebben of niet meer willen en geen duurzame of inclusieve buurt opleveren.”

Woningen voor de doorstroom
Woningen voor de doorstroom noemt Milena Zaklanovic zulke stadsappartementen. De eenzijdige oriëntering en diepte maken deze appartementen donker, inflexibel en vaak alleen geschikt voor eenpersoonshuishoudens: “Zodra je in je leven een volgende stap zet - een relatie, een gezin - kun je met zo’n woning veelal niet meer uit de voeten.” De smalle beukmaat geeft architecten ook weinig ruimte om privacy in de plattegrond te realiseren en verschillend gebruik te scheiden. Fenna Haakma Wagenaar: “Het is precies waar de woningwet over ging - dat je niet kookt en eet naast je bed. Samenwonen in een studio waar een zieke zich niet kan terugtrekken, waar geen ruimte is voor een tweepersoonsbed of waar de temperatuur op een zomerse dag tot veertig graden oploopt… pittig hoor!”
“Gewoon Goed geeft behalve ruimte in de envelop voor optimalisatie of innovatie ons in ieder geval ook de opdracht om woonkwaliteit vanaf het begin onderdeel te maken van het gesprek.”

Appartementen kleiner dan vijftig vierkante meter; in Amsterdam neemt het aantal ieder jaar toe. Zulke compacte appartementen beantwoorden aan een vraag; volgens de tweejaarlijkse Factsheet Wonen uit 2023 woont van alle 505.705 huishoudens in Amsterdam ruim de helft (51%) alleen. Maar hoe staat het met de kwaliteit van het aanbod? Wisselend, stellen hoofdontwerper Fenna Haakma Wagenaar en senior stedebouwkundig ontwerper Milena Zaklanovic van de Amsterdamse Dienst Ruimte en Duurzaamheid. Het tweetal houdt zich met collega’s van de afdeling Wonen, de Dienst Ruimte en Duurzaamheid en Grond en Ontwikkeling al sinds de coronatijd bezig met de kwaliteit van kleine woningen. Haakma Wagenaar: “Die collega’s zijn toevallig allemaal architecten, die zagen dat de cultuur waarin ze waren opgeleid en hadden gewerkt snel aan het veranderen was. We constateerden dat de woningplattegrond geen onderdeel meer was van het planproces. En door de grote toename van het aandeel kleine woningen kwam het verderop in het proces ook niet meer zo maar goed met de kwaliteit. Juist kleine woningen vragen extra aandacht. Ze zijn niet alleen maar de oplossing van een haalbaarheidsprobleem, maar vormen zelf ook een uitdaging.”
Het huisvesten van kleine huishoudens is landelijk en in Amsterdam een grote opgave, onderstreept Milena Zaklanovic: “Het gaat om een demografische trend die verder doorzet. Maar zonder sturing op woonkwaliteit bestaat het gevaar dat we in de toekomst zitten opgescheept met veel kleine woningen die niet makkelijk aan te passen of samen te voegen zijn. Woningen die we, als de vraag verandert, niet meer nodig hebben of niet meer willen en geen duurzame of inclusieve buurt opleveren.”
De handreiking Gewoon Goed bevat ook een aantal praktische bijlagen zoals de vuistregels kleine woningen. Dit document biedt inspiratie en tips hoe kleine woningen toch van hoge kwaliteit gebouwd kunnen worden.